Kjøpe bolig
Tomt 44
Boligen
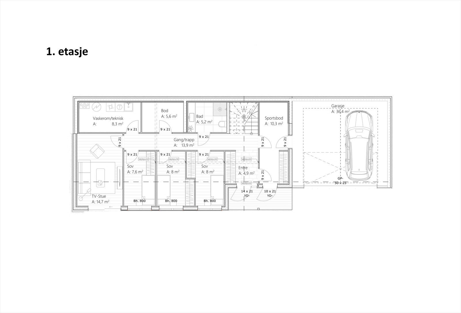
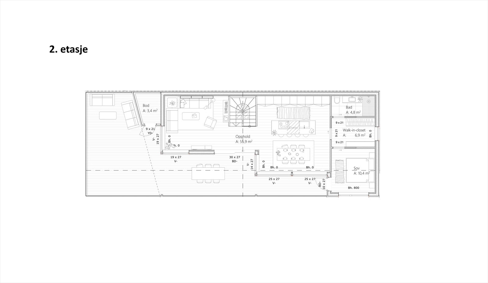
Innholdsrik bolig på BRA 162 kvm
1. etasje: Stue og kjøkken på 45 kvm | wc-rom | vaskerom
2. etasje: 4 soverom | 2 bad | walk-in closet| bod
Utomhus: carport | sportsbod | terrasse
Ingen forskuddsbetaling. Froventet ferdig sommeren 2026.
Pris: 8 500 000
Selger/aktør
Aarvik Byggmester
Bjarte Aarvik – 917 41 012 – bjarte@aarvik.as
Tomt 43
Boligen
Bolig under planlegging. BRA ca. 200 kvm
Froventet igangsatt sommeren 2026.
Pris: Kommer for salg – pris ikke fastsatt
Selger/aktør
Aarvik Byggmester
Bjarte Aarvik – 917 41 012 – bjarte@aarvik.as
Er du aktør som ønsker å tilby bolig i Lysehagen?
Lysehagen ønsker å utvide tilbudet av boliger og seriøse aktører som ønsker samarbeid oppfordres til å ta kontakt med Lysehagen eller megler.



